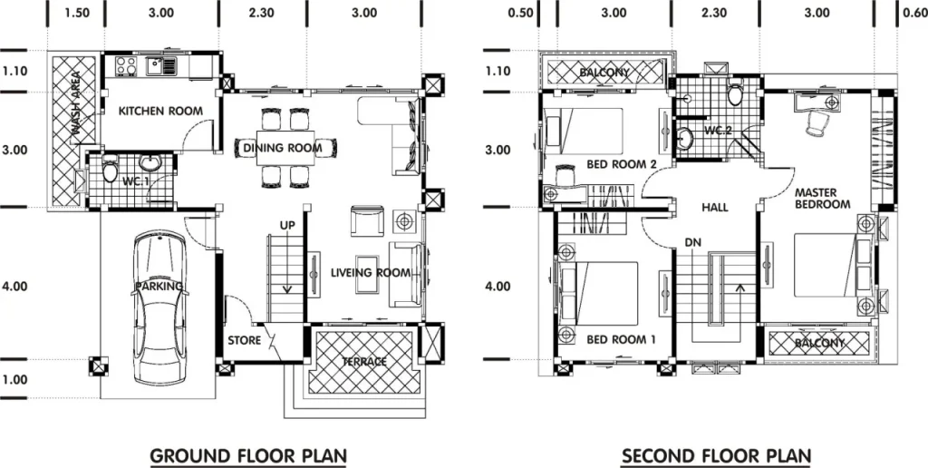
บ้านสวยดีไซน์ทันสมัย ขนาดกะทัดรัด พื้นที่ใช้สอย 140 ตร.ม. มาพร้อม 3 ห้องนอน 2 ห้องน้ำ และที่จอดรถ 1 คัน ในราคาเพียง 2,390,000 บาท
บ้านสวยดีไซน์ทันสมัย ขนาดกะทัดรัด พื้นที่ใช้สอย 140 ตร.ม. มาพร้อม 3 ห้องนอน 2 ห้องน้ำ และที่จอดรถ 1 คัน ในราคาเพียง 2,390,000 บาท